
Idemia Coworking Offices – Noida
| April 23, 2021Chaukor Studio partnered with Idemia, known for working with cutting-edge technologies, to design a coworking shared space for tech-based startups in Noida, India.
Headquartered in France, the Idemia group is known for working with cutting-edge technologies in the domains of Biometrics and Identity Recognition. The technologies are already being used in Urban Infrastructure projects, Airports, Banks and it also has Retail Applications. With this background, Idemia group also works with many upcoming tech based startups and companies that work on innovative technologies and products that will eventually pave way in future applications. The innovation centre in their Noida headquarters is visualized as a coworking shared space where such tech startups can be incubated, mentored and work in collaboration with Idemia.
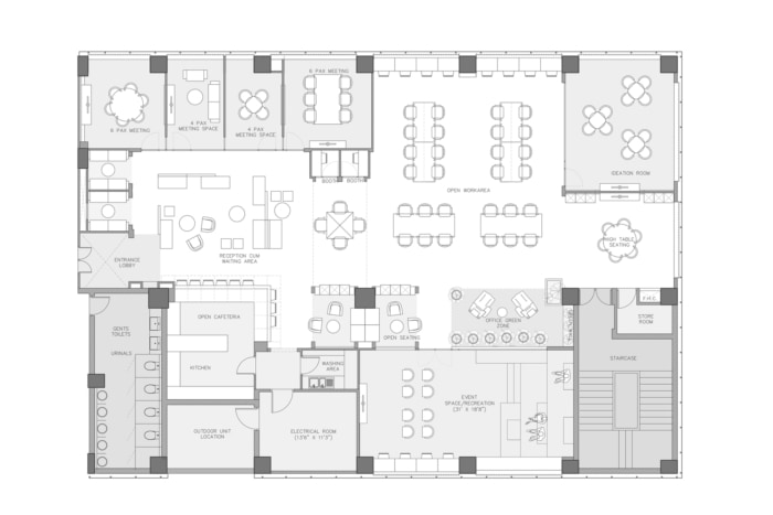
In contrast to a conventional office space where all formal areas are given prime importance over the informal ones – the innovation centre does the complete opposite! An open cafeteria designed on minimalistic lines is the first thing that an individual encounters the moment one enters the office space. The main reason behind this design decision is to enforce the idea that any kind of collaboration actually starts to take shape in spaces that have informal characteristics. Conventionally, people are forced to work in structured formats, where spontaneity is generally lost and with that the possibility of innovative ideas. For individuals to work in a collaborative manner, it is crucial that the spatial planning and design supports the same. So it becomes essential that there are in-numerous possibilities where people can connect and spark up discussions.
Bringing in variety to seating layouts and creating clusters where smaller groups can exist cohesively accentuates the possibilities of spontaneous discussions and generates collaborative work styles. The entrance space is a composite mix of a large comfortable lounge, meetings rooms for 4-5 people (with varied seating layouts) and a couple of semi-open cubicles where people can chat while maintaining privacy from the central lounge space. In addition to smaller cluster spaces, single person booths are also designed that allow individuals to hold confidential video conferences and for private conversations. Next to the clustered spaces are the workstations that too follow the structure of openness and collaboration. Floating, freestyle workspaces are planned in an open-hall format where people can work while being part of a larger collective. Since the centre is never used as a full time workspace, the workstations are not designed to maximize efficiency rather they are designed to encourage creativity and spontaneity. The placement of workspace however is planned towards the inner part of the office space to maintain certain noise segregation from the active lounging cluster areas.
The third and one of the largest zones in the innovation centre is the event space that provides space for larger group meetings and can accommodate 40-50 people at a given point. This space is used to hold larger informal conferences, seminars and events wherein people can present their ideas that they have been working on. This is also the space where mentors and investors come in to address concerns faced by startups and tech companies associated with the group. Event space is planned in two distinct parts – one with a fixed wooden platform which has a similar use case as that of an amphitheatre. While a large open space is left in addition to it that provides flexibility in seating layouts that can be arranged as per the use case of the event hosted.
In nutshell, the innovation centre is a composition of Lounging collaborative spaces for smaller work groups, Workspaces that are used essentially by individuals for smaller time durations and an Event space where people gather in larger groups to share their ideas. This wide variety provides the much needed flexibility to the office space that enables collaboration, innovation and eventually leading up to disruption!
Design: Chaukor Studio
Photography: Abhay
The post Idemia Coworking Offices – Noida appeared first on Office Snapshots.













